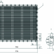
Калорифер водяной КСк 2-2
Калорифер водяной КСк предназначен для отопления помещений различного назначения. В качестве теплоносителя в калориферах КСк используется горячая вода. Калорифер КСк представляет собой прямоугольный блок изготовленный из стальных труб оребреных алюминием. Диаметр труб 16 мм. По запросу можно изготовить калорифер с различными размерами трубы. Принцип работы калорифера водяного КСк очень прост: горячая вода поступает в калорифер КСк через патрубок расположенный на торцевой части калорифера. Далее вода протекает в трубы где делает несколько ходов (от 2 до 6) в зависимости от модели калорифера, тем самым проходит процесс передачи тепла (теплообмен). В дальнейшем вода отводится через патрубок, который расположен в нижней части калорифера водяного КСк.

