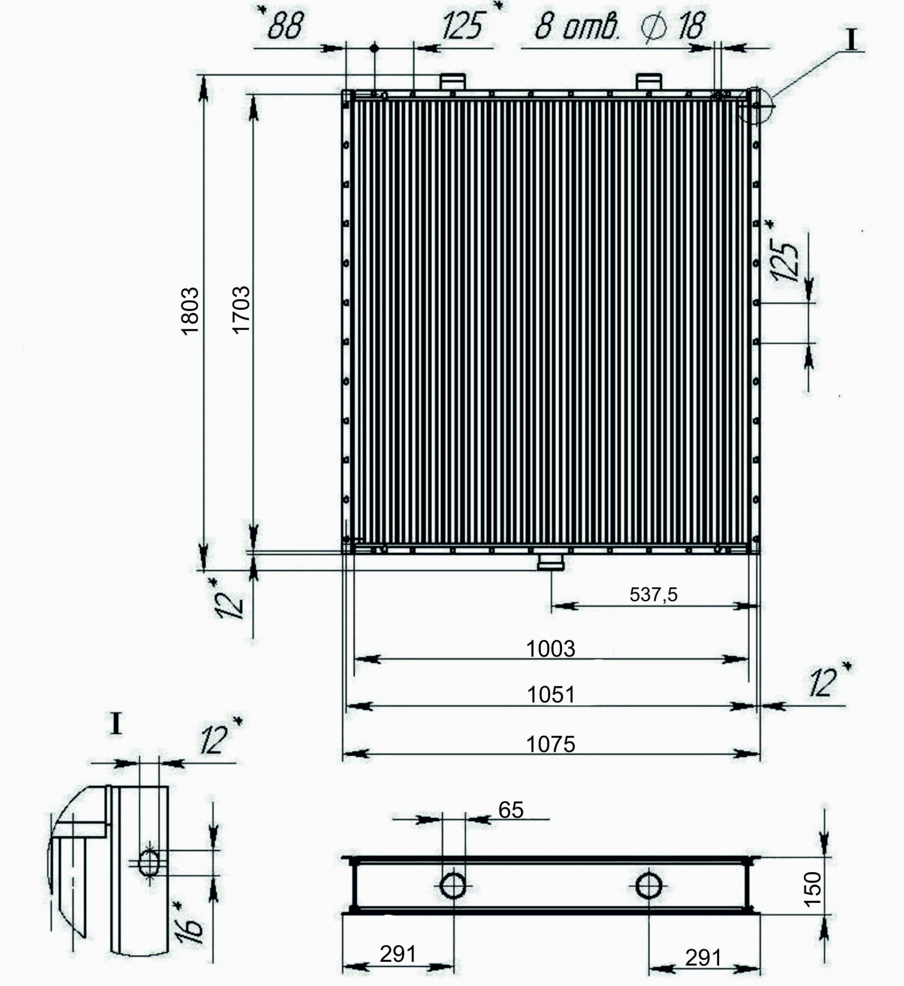
Калорифер паровой КП-Ск 2-11
Калорифер КП-СК представляет собой теплообменник-моноблок для нагрева воздуха с помощью пара. Пар поступает в патрубок либо патрубки (в зависимости от модели калорифера, в дальнейшем поступает в трубки где происходит теплообмен и пар преобразуется в конденсат, в дальнейшем он отводится через патрубок расположенный в низу калорифера КП-Ск. В качестве нагревательного элемента в калориферах КП-Ск используется стальная труба размером 16 мм. с накаткой из алюминия.

